土地71坪の角地!生活便利な施設に歩いて行ける場所です。部屋数も多く家族の人数の多い方にもおすすめです。


























土地71坪の角地!生活便利な施設に歩いて行ける場所です。部屋数も多く家族の人数の多い方にもおすすめです。


























| 価格 | 2780万円 |
|---|---|
| 物件所在地 | 亀岡市中矢田町久保垣内 |
| 地図 | https://maps.app.goo.gl/QJELxETMLxb6HwzA6 |
| 建物構造 | 軽量鉄骨造2階建 |
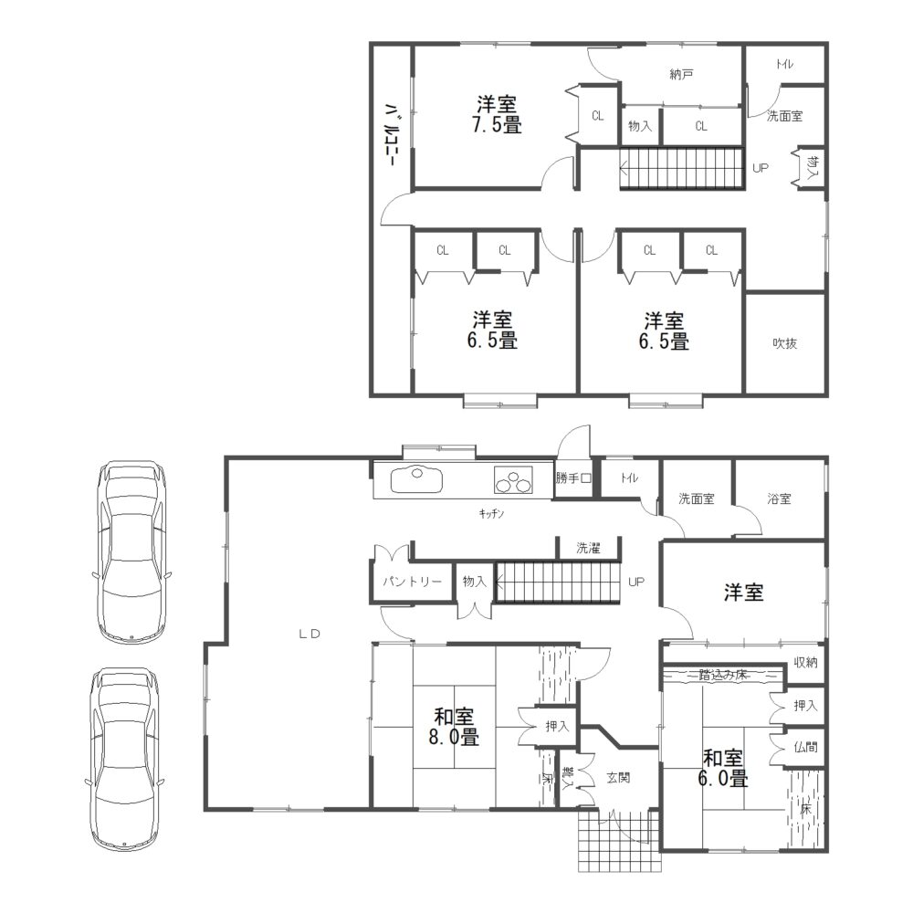
| 間取り | 6LDK |
| 築 | 1992年07月 築 |
| 建物面積 | 178.87㎡ |
| 交通状況 | JR山陰本線 亀岡 徒歩25分 |
| 土地面積 | 237.54㎡ (71.85坪) |
| 設備等 | バス1坪以上 トイレ2ヶ所 クローゼット ウォークインクローゼット プロパンガス 電気 上水道 下水道 駐車場2台分 |
| 現状 | 空家 |
| オススメポイント | 土地71坪の角地!生活便利な施設に歩いて行ける場所です。部屋数も多く家族の人数の多い方にもおすすめです! |
| 備考 | 現状有姿公簿取引 契約不適合責任免責 |
| 入居可能予定日 | 相談 |
| 情報更新日 | 2023/9 |